创时空设计丨东莞万科菁英荟别墅样板房:现代都会邂遇闲适浪漫
发布时间:2019年01月11日 点击率:
院子的门开着香片随着心事
向杯底沉落
茶几上
烟灰无非是既白且冷
无非是春去秋来
——洛夫《有鸟飞过》(节选)
日益丰盛的生活中,喧嚣与忙碌交织不停,都市菁英在寻找着安静闲适、放松自我的一个空间。家的本真意义,便是打造成忙碌之外属于自身的一个舒适圈,漫溢着舒缓安宁、平和畅达的气息,是一个完美契合自身生活方式的地方。
“我们希望营造疏朗雅静的氛围,将空间打造成具有认同感的精神领地,成为居住者生活上舒缓精神的主导者,令设计的艺术美融入环境,令体验带动居者享受生活的闲雅与安适”,这是创时空设计赋予东莞菁英荟别墅项目软装设计的格调与定位。
项目名称:东莞万科菁英荟别墅样板房
项目地址:广东 东莞
项目面积:260㎡
开发商: 万科地产
软装设计:创时空设计
设计总监:贾红峰
△客厅
创时空将对于家的期待转译成设计的语汇,选用素白色的极简法式背景墙、水波纹理石饰面来定义空间的清雅柔和,雅致的雾霾蓝与格纹轻轻地挑起空间的韵律美感,搭配纯白花艺,空间附着着一层恰到好处、不过于浓郁的浪漫情调。阳光透散过微透的纱帘为空间染上一抹暖意,令人们不觉沉溺于韶华中的闲适与安缓。
△餐厅
半开放式的厨房设计,自由切换中西厨模式,小型中岛柜补充更多的收纳空间,家人在这里一同料理,加载出更多亲昵的生活场景。餐厅以围合的简式餐桌椅、纯净的水晶灯饰、精致的餐具与花艺,打造温馨喜乐的就餐氛围与生活的仪式感。
△茶室
诗意绵长的茶室是家屋里一处可烹茶会友的小天地,其间的闲趣不言而喻。收藏架上摆放着各式福建建盏,散溢着古朴而素雅清冽之感,花果沁香,茶香浓郁,为生活加入了些许清雅况味。
△主卧
主卧设计选用亚棕色的基调,渲染着雅澹的居室氛围,木质、合金、软包材料的运用增加了质感的丰富性。空间内的美感由饰面上的纹理一层层地延展开来,仿佛协奏着一首古典钢琴乐曲,曼妙而舒缓身心。
△书房
一桌一柜,还有一窗连接自然,造型奇特的灯饰与艺术品,点缀空间简雅与时尚的艺术格调。在这样简净风格的书房中放松自我,可以随时拥抱生活的随意与闲适。
△长辈房
长辈房的设计选用亚麻色、灰蓝这些相对柔和的色调,契合老人家舒惬享老的生活心态。舒适亲肤的床品、精致的艺术饰件、甘甜芬芳的插花,营造亲和淳朴、安享自身的生活氛围。
△儿童房
儿童房是宇宙太空的科幻主题,带有灰调的蓝色在空间中以丰富的层次、不一的功能呈现展演,更为耐看的陈设色调可以经得起小男孩心智的成长变化。随处可见的STARWARS周边、月球造型钟表和灯、太空舱床头柜与发光背景,搭载着小朋友稚嫩而精彩的梦,空间变得美好而富有童趣,是童年最为美好的生活馈赠。
推门走出庭院,蓊郁竹林的绿色,与吊椅的纯白色无间而自然交融了起来,随意地吸收着慵懒的阳光,人在与自然的交叠中舒缓而不疲惫,在平凡而真切的居室中感受着美好,一切都落得闲适静宁。
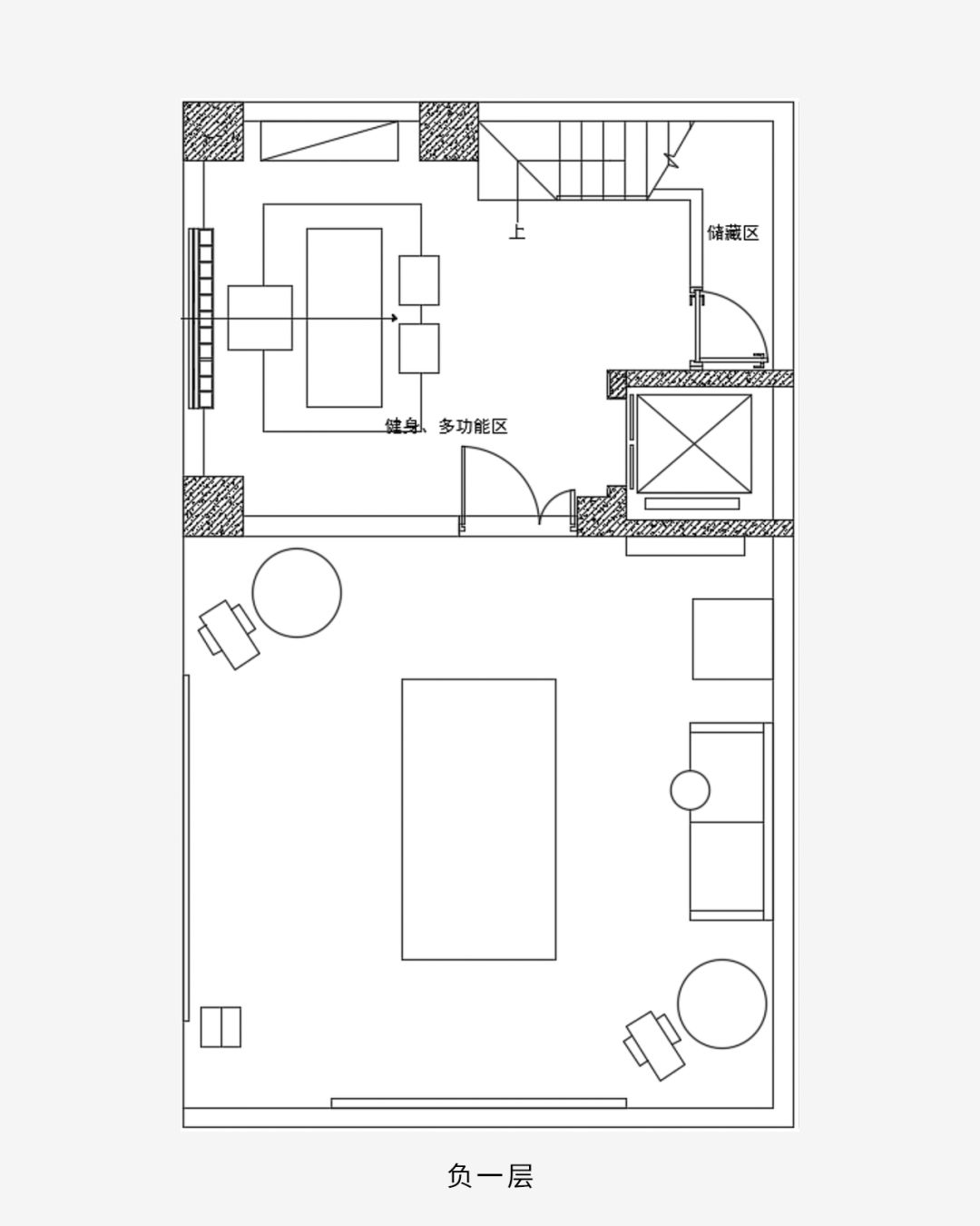
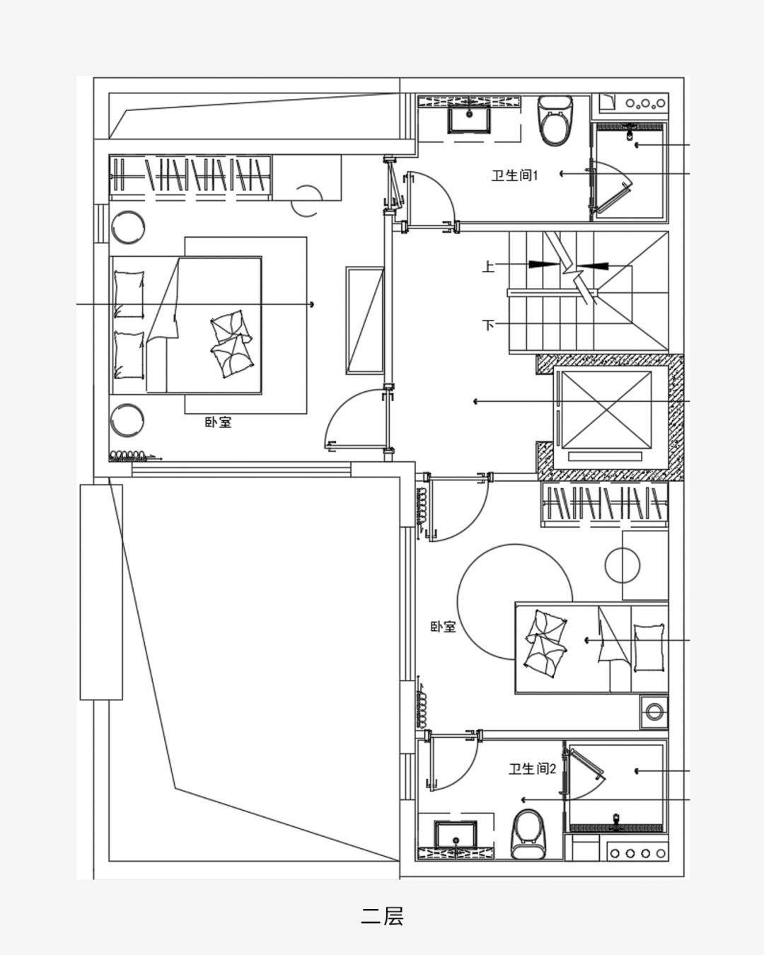
△平面图
关于创时空
深圳市创时空环境艺术设计有限公司(Genesis Design )创办于2005年,专注高端地产室内与软装设计,服务涵盖高端会所、酒店、地产售楼处、别墅及样板间等多样化项目类型的创新和实践。
本着“承袭人文之间,创新意想之余”的理念,创时空在设计中从商业全局、客户诉求、市场趋势、艺术美学等角度切入, 研究东西文化的融合,探索设计的多元性,强调经典与个性化交织的韵律,用当代设计语言实现情感传达。13年来,与万科、金地、建发、世茂等地产集团一直保持战略合作伙伴关系。
▽近期作品
△福州建发·央玺售楼会所
△东莞万科皇马骊宫
△福州建发·领墅售楼会所
△东莞万科金域广场Loft公寓
(转自:A963设计前沿)
(该文章来源网络,如有侵权请联系15212443003,我们将第一时间进行删除)



