颐养之所——三个来自国外的养老之家
发布时间:2018年09月13日 点击率:
“随着时代的变迁,人们对养老的需求也逐渐升华,从单纯的“有所依”,到不断追求更高品质的老年生活。在我们的传统印象中,中国的养老院不是混夹在压抑的高楼群立之中,就是孤独地坐落在偏僻的城市郊区。而功能区也仅仅是为了满足了其基本需求,例如生活区就是生活区,放几张沙发,摆几张桌子,配几台电视就完事了,久而久之未免让人觉得有点乏味。
那么,今天为大家介绍三个来自国外的养老之家,从适老化设计来进行简单的鉴赏,看哪些地方值得我们学习。
法国·Huningue老年之家
该老年之家项目位于Rhine河岸,建筑师充分利用基地的地理优势,面向河流设置大堂及公共空间,让住户可以尽情欣赏河面上来来往往的船只。建筑中包含25个50平米的房间,一个由3部分组成的餐厅,一间电脑房,一个趣味工作坊,一片蔬菜种植园以及一个法式滚球场。
▼建筑外观
▼建筑位于Rhine河畔,可以享受优美河景
建筑立面由砖材砌制而成。这种砖块为手工制作,形状不甚规则,会出现一些意想不到的古怪效果。当阳光照射在墙面上,砖块粗粝的接口被突显出来,与Rhine的历史亦产生了某种关联。
▼建筑立面使用手工砖块,产生一种粗朴的韵味
▼交通及景观功能示意图
为了培养住户之间的感情,建筑师设计了宽敞而明亮的公共空间,以促进人与人之间的接触和交流。即便是走在过道上,也会被各种活动吸引。
▼入口
▼宽敞明亮的大厅,红色的混凝土和陶土给人以温馨亲切的感觉
▼白色盒子中的露台将阳光引入公共空间,促进住户交流
楼梯间位于建筑中部,是人们的必经之地。它与宽阔的中央区域相连,加强了整个空间的流动性。楼上朝南的露台如同一个漂浮的白盒子,将阳光引入建筑内部。同时,它作为空间中异质的存在,使大厅不再显得空旷无聊。
▼与大厅相连的楼梯
▼二层走道,木制楼梯和过道搭配红色混凝土
▼二层公共空间
▼一侧为落地窗的明亮走道
在室内,红色的混凝土、陶土和木材营造出一种亲切的空间氛围。
▼房间室内
▼夜景
▼区位图
▼总平面图
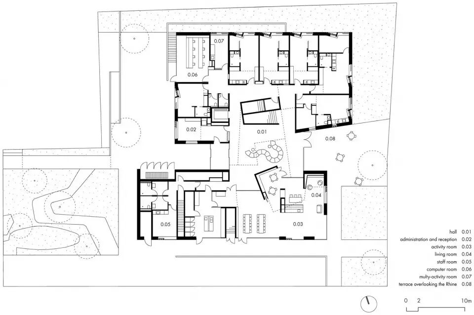
▼一层平面图
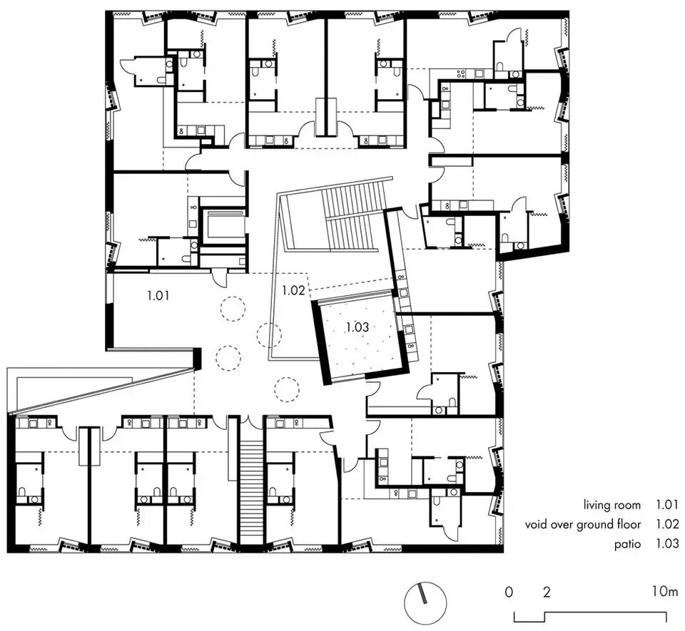
▼二层平面图
法国·退休之家
这个养老院项目不是封闭的项目,居住者可以与他原本的环境、亲属、家庭、朋友等保持联系。养老院拥有绝佳的位置,坐落于Montmorency城市中心。建筑利用其优越的区位,为每一个房间都创造了良好的朝向,向南开敞,坐享巴黎盆地的优美风景的绝佳视野。
▼ 建筑的一侧对城市放并且拥有坐享巴黎盆地优美风景的绝佳视野
建筑的空间围绕一个中心服务核来布置,建筑中的天井不仅为核心空间提供了充足的采光,同时还使整个空间更加舒适宜人。建筑注重室内空间的设计,创造出光线充足,舒适的生活空间。并且希望通过创造室内空间与室外空间之间的联系来达到创造一个对城市以及更广阔的大自然开放的场所的目的。
▼ 建筑底层创造出舒适的交流空间
▼ 建筑的中庭与建筑外立面的色彩形成强烈反差
▼ 室内的细节
▼ 室内空间
日本·JIKKA疗养之家
项目为五间连在一起的小屋,包含居住,餐厅和旅店功能,可以为老年人和残疾人提供护理服务。业主是两位年过六旬的老妇人,分别为社会工作者和厨师。她们委托建筑师建造自己人生最后的居所,让她们可以一边服务社会,一边度过余生。根据业主的要求,建筑要在朴实无华的同时,如同礼拜堂一般拥有某种神圣性。
▼项目外观
基地位于被之前的所有者移平的山顶上。新建的五间小屋高低错落,仿佛一座座小山包,唤起了人们对于山峰的记忆。
▼高低错落的屋顶如同山峰
▼鸟瞰图
▼建筑的不同角度
餐厅每日向公众开放,其中的菜品均用本地食材料理而成,并且提供为当地老年人送餐的服务。客房中设有无障碍浴池,需要护理的老年人或残疾人可以方便地使用这里的设施。
▼餐厅
▼无障碍浴池
▼礼拜堂般有神圣感的空间
▼平面图
▼剖面
谁都想优雅地老去,谁都想即使老去也依然过着年轻般的生活。在满足基本生活需求的基础上,应尽可能让老人的生活多姿多彩,这样养老之家才不会沦落成“一帮只会吃喝拉撒睡的老机器的临终归所”。
(转自A963设计前沿)
(该文章来源网络,如有侵权请联系15212443003,我们将第一时间进行删除)



