最爱那一抹清凉:华欣海边别墅
发布时间:2017年09月05日 点击率:

Seaside Villa / Shinichi Ogawa & Associates
由专筑网朱王倩,李韧编译
来自建筑事务所的描述,这栋周末住宅位于泰国中部的度假胜地华欣。它是一座精致的周末小屋,可以俯瞰到最佳风景。建筑坐落在狭长的地块上,从主干道到海滩,宽50米,长300米,可以尽情地享受美丽的沙滩,以及优雅的海滩度假生活。
From the architect. The weekend house built on the site of resort area Hua Hin located in central Thailand.It is a refined weekend house that can overlook all the best views.The weekend house is situated in elongated site with a width of 50 meters and a length of 300 meters from the main street to the beach, in front of you in a location where you can enjoy a beautiful sandy beach and an elegant beach resort.
© Pirak Anurakyawachon
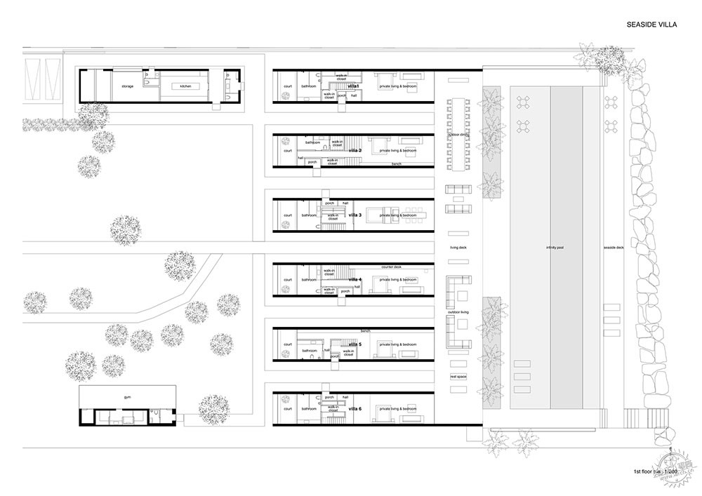
周末住宅由业主在基地中间建造。除此之外,在海滩前面还有6个房间供每个家庭成员使用,所有家庭成员可以共享户外餐饮、户外生活、游泳池、健身房、桑拿和厨房。
On this site, there is a weekend house previously built by the owner in the middle of the site. Apart from that, there are six rooms for each of the six family members to use in front of the beach, and all the family members can share outdoor dining, outdoor living, pool, gym, sauna, and kitchen.

© Pirak Anurakyawachon

© Pirak Anurakyawachon

一层平面图/First Level Plan

© Pirak Anurakyawachon
每个房间高4米,进深6米,开间为20米,由5米高的私人客厅贯通,通往海边建筑的一半,另一半为不同平面布局的浴室和阁楼。
Each room is composed of a space of 4m in height and 6m in length and 20m in length and consists of a private living room with a ceiling height of 5m from the opening on the seaside to the half of the building, the another half with a bathroom and a loft that has different planning.

© Pirak Anurakyawachon

© Pirak Anurakyawachon

© Pirak Anurakyawachon
户外餐饮和户外生活,家庭聚会由44米长的大门连接,40米长的泳池通向大海。海滨别墅可以在不同的私人空间和公共空间享受美景。
The outdoor dining and the outdoor living where the family gathers are connected by a gate of 44m in length, and the infinity pool of 40m in length leads to the sea. The SEASIDE VILLA is able to feel the resort in different spaces from diverse private spaces to public spaces.

© Pirak Anurakyawachon

© Pirak Anurakyawachon

© Pirak Anurakyawachon

© Pirak Anurakyawachon

© Pirak Anurakyawachon

© Pirak Anurakyawachon

© Pirak Anurakyawachon

© Pirak Anurakyawachon

© Pirak Anurakyawachon

© Pirak Anurakyawachon

© Pirak Anurakyawachon

© Pirak Anurakyawachon

© Pirak Anurakyawachon

场地平面图/Site Plan

底层平面图/Ground Floor Plan

剖面图/Section

房间1平面和剖面图/Villa 1 - Plans and Sections

房间2平面和剖面图/Villa 2 - Plans and Sections

房间3平面和剖面图/Villa 3 - Plans and Sections

房间4平面和剖面图/Villa 4 - Plans and Sections

房间5平面和剖面图/Villa 5 - Plans and Sections

房间6平面和剖面图/Villa 6 - Plans and Sections

立面图/Elevations
建筑设计:Shinichi Ogawa & Associates
地点:泰国,华欣海滩
项目负责人:hinichi Ogawa
面积:970.6平方米
项目时间:2017年
建筑摄影:Pirak Anurakyawachon
Architects: Shinichi Ogawa & Associates
Location: Hua Hin Beach, Hua Hin District, Prachuap Khiri Khan, Thailand
Lead ArchitectS: hinichi Ogawa
Area: 970.6 m2
Project Year: 2017
Photographs: Pirak Anurakyawachon
出处:本文译自www.archdaily.com/,转载请注明出处。
(该文章来源网络,如有侵权请联系15212443003,我们将第一时间进行删除)



