百年乡下房爆改,6米天空泳池成最大胆设计
发布时间:2018年11月21日 点击率:
乡村度假酒店
Gloriette Guesthouse
在意大利北部的博尔扎诺(SOPRABOLZANO)连绵起伏的绿色山丘中,有一个老房子改为了一座精品酒店,名为:Gloriette Guesthouse。
这栋建筑有着100多年的历史,原来是当地村子一栋破旧的房子,由 noa * 设计事务所设计,拆除了外墙复古的元素,经过对表皮简洁的处理,形成了全新的外立面。
01
天空泳池
与拱形的立面窗洞形成对比,屋顶有一个悬挑的反拱,这里是这个酒店最为大胆的设计:悬臂式天空泳池。
△剖面图
用金属管编织出一个遮阳篷,仿佛一个金属外壳,围合出一个极为精彩的泳池空间。映射在水面上的倒影,让这里成为客人来这酒店必 po 图的地方。
因为曲率的关系,泳池最深处达到了6米,水性不好的就不要下去了~
02
屋顶SPA
△屋顶SPA平面图
拱形泳池联通屋顶层,这里即是泳池的入口,也是室内外的一个灰空间。
03
立面改造
外立面通过加减法的处理,强化了突出拱形窗的形式感。
04
大堂、餐厅
△一层平面图
05
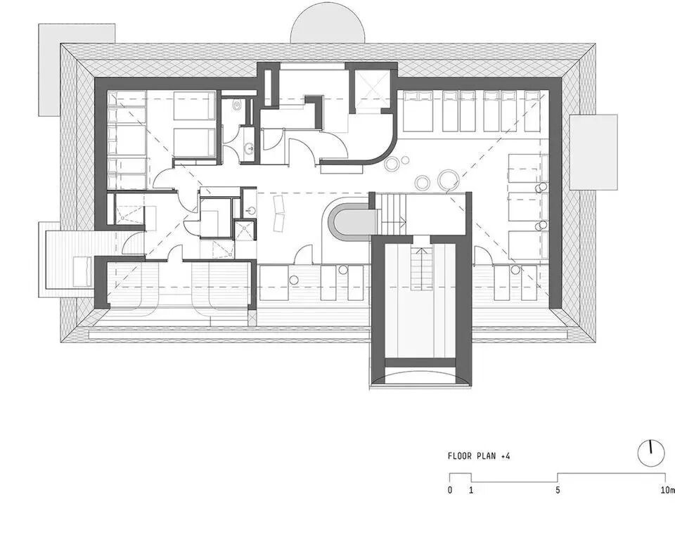
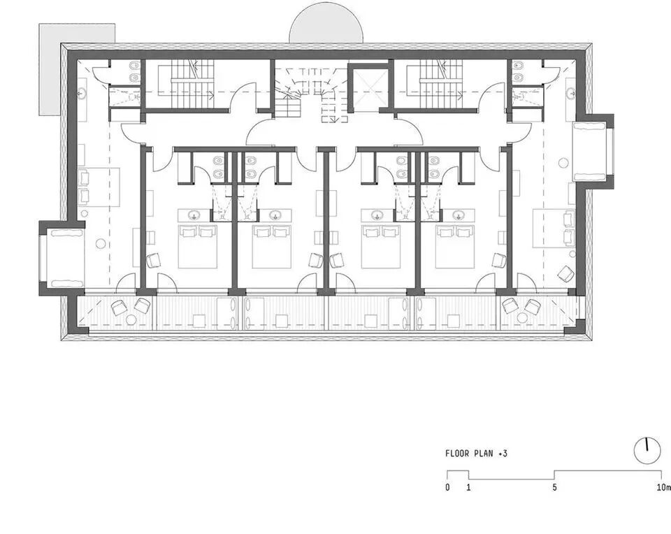
客房、套房
整个酒店有25个客房和套房,整体的色调采用了轻松自然的材质搭配。
△客房平面图
△中间房
△靠边房
△套房
(转自:A963设计网)
(该文章来源网络,如有侵权请联系15212443003,我们将第一时间进行删除)



